開關柜機械和電氣聯鎖
開關柜機械和電氣聯鎖詳細資料由專業的低壓開關柜、低壓配電柜、低壓配電箱報價廠家為您提供。
高壓開關柜的“機械聯鎖”是確保設備和人員安全、防止誤操作的重要措施。《3 ~ 35kv交流金屬封閉開關設備》(GB 39091)對此有明確規定。本國家標準將“聯鎖”描述為:“金屬封閉開關設備應具有:隔離開關(隔離插頭),以防止負荷分流和關閉;防止斷路器、負載開關和接觸器誤開或誤合(允許暗示);當接地開關處于閉合位置時,防止接地開關閉合斷路器、負荷開關和其他開關;防止重新通電時接地開關誤合;上述防止電氣誤操作的五項措施被稱為“五項預防措施”“五防”裝置一般可分為三類:機械、電氣和綜合。我們的高壓開關柜屬于綜合類。
機械聯鎖是在高壓開關柜的操作部件之間使用相互限制和連接的機械機構,以實現連續動作的鎖定要求。單柜機械聯鎖在操作過程中不需要使用鑰匙等輔助操作,可以按照正確的操作順序逐步自動解鎖。當發生誤操作時,可以實現自動鎖定,防止誤操作。
一些10kV配電設備采用金屬封閉開關設備,包括高壓開關柜,高壓PT柜,高壓計量柜等。高壓開關柜是變電站運行中經常使用的設備之一,因此了解高壓開關柜的“機械聯鎖”非常重要。
“五防”的具體內容包括:
1.防止有載隔離開關打開和關閉。(隔離開關不能在斷路器、負載開關和接觸器閉合狀態下操作。)2。防止斷路器、負載開關和接觸器的誤操作。(只有當操作說明與操作設備相對應時,才能操作被操作的設備。)3。當接地開關處于閉合位置時,防止斷路器和負載開關閉合。(只有當接地開關處于斷開狀態時,隔離開關或手車才能閉合到工作位置,斷路器和斷開開關才能操作閉合。)4。防止接地開關通電時誤合。(只有當斷路器打開時,才能操作隔離開關或手車,并且接地開關從工作位置到測試位置是閉合的。)5。防止誤入帶電的房間。(只有當車廂沒有充電時,門才能打開進入車廂)
一、斷路器聯鎖實施方式
對于高壓開關柜的單斷路器,其機械聯鎖的主要功能是:
1.防止誤入帶電的房間。
2.防止接地開關通電時誤合。
3.防止斷路器誤開或誤合
4.當接地開關處于閉合位置時,防止閉合斷路器。



二。斷路器與隔離開關聯鎖的實現
對于母線耦合器高壓開關柜的斷路器和隔離開關,其機械聯鎖的主要功能是:
1.防止有載斷開開關打開和關閉
2.防止誤入帶電的房間。
3.防止斷路器誤開或誤合

操作順序(紅色“標記”為母聯柜,綠色“標記”為母聯隔離柜):
當需要斷開母聯時,先按操作程序斷開斷路器,然后將手車搖至“試驗”位置,拔出聯鎖拉環,拔出鑰匙;然后將鑰匙插入母聯隔離柜的聯鎖裝置中,推動聯鎖拉環,搖出隔離手車。操作完成。組合母柜的操作步驟相反。完全實現了“防止負荷分流和隔離開關關閉”
二。自動測試系統柜式斷路器的聯鎖實現
對于ATS高壓開關柜的斷路器,機械聯鎖的主要功能是:
1.防止誤入帶電的房間。
2.防止接地開關通電時誤合。
3.防止斷路器誤開或誤合
4.當接地開關處于閉合位置時,防止閉合斷路器。

操作順序(紅色“標簽”指N電源柜,綠色“標簽”指E電源柜,黃色“標簽”指出線柜):
當出線柜需要斷開時,應切斷N電源柜和E電源柜的電源,拔出KEY1和KEY2的鑰匙,然后將鑰匙插入換鎖箱,取出KEY3的鑰匙插入出線柜的聯鎖鑰匙孔,才能操作出線柜。關閉出線柜的操作程序相反。
一、高壓柜內兩個進線柜與母聯電氣聯鎖的協調
除了完善的機械聯鎖之外,每組開關柜應具有相應的電氣聯鎖。由于機械聯鎖不能到達很遠的地方,距離太遠會影響靈敏度,此時需要電氣聯鎖的配合。以下三個電氣原理圖為C2變電站高壓進線柜與母聯柜之間的電氣聯鎖示意圖,其中PDS741A為1號、2號進線柜的綜合保護裝置,PDS731B為母聯柜的綜合保護裝置。1QF為1號進線柜斷路器,2QF為2號進線柜斷路器,3QF為母組合柜斷路器。聯鎖原則如下:
在計量柜和母聯隔離柜就位的情況下,1QF和2QF合并。此時,PDS731B的7和9處于斷開狀態,其304端子沒有電源,3QF不滿足閉合條件。類似地,當1QF和3QF接通時,2QF不滿足切換條件;當2QF和3QF關閉時,1QF不滿足關閉條件。



二。低壓柜中兩個進線柜與母聯電氣聯鎖的配合
一般情況下,兩組互為備用的低壓柜與母聯之間采用“三合一”的邏輯關系。控制電路相互電氣聯鎖(如圖所示),其中Q1為1#進線斷路器,Q2為2#進線斷路器,Q3為母聯斷路器,2KA和3KA為Q2和Q3的故障繼電器,3KA1為啟動繼電器。
在手動操作中:10,000轉SA的1和2條腿連接在一起。當Q2和Q3閉合時,Q1閉合回路A-2和A-3斷開,其閉合線圈XF不能通電,Q1不能滿足閉合條件。同樣,當Q1、Q2或Q1、Q3同時接通時,Q2或Q3也不能滿足切換條件。使進線柜和母聯符合“三合一”的邏輯。
自動時間:10,000轉SA的3條和4條支路連接。起動繼電器3KA1取代按鈕1SB1的功能,其他動作與手動操作相同。
注:該原理圖為Q1斷路器的控制圖,Q2和Q3的控制圖相同。

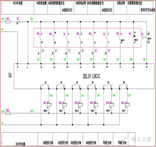
以下電氣原理圖為C2變電站低壓進線柜與母聯柜電氣聯鎖示意圖,其中QFA為401開關,QFB為402開關,QFC為母聯開關。PLC模塊安裝在母聯柜內,其控制電源DC24V分別由401和402開關并聯。聯鎖原則如下:
手動操作:當QFA和QFB接通時,QFC接通回路C1和C2斷開,其接通線圈XF不能通電,QFC不能滿足接通條件;同樣,當QFA、QFC或QFB和QFC同時接通時,QFB或QFA也不能滿足切換條件。使進線柜和母聯符合“三合一”的邏輯。
自動時:由于低壓進線開關不使用欠壓(失壓)線圈,該模塊用于在失壓時控制進線開關的打開和關閉。三個聯鎖斷路器的電源都來自母聯柜。按鈕由中間繼電器代替,其他聯鎖步驟與手動相同。

C401

C402

母線開關

可編程邏輯控制器控制圖
分享:朋友圈
點擊
你覺得這篇文章怎么樣
更多選型規格報價定制等問題可及時聯系廠家,以上就是開關柜機械和電氣聯鎖全部內容。
